Kapitel 3
Unser alter Turm
"Nema problema" - wir restaurieren ein altes Gebäude (von Matthias Reithmair)
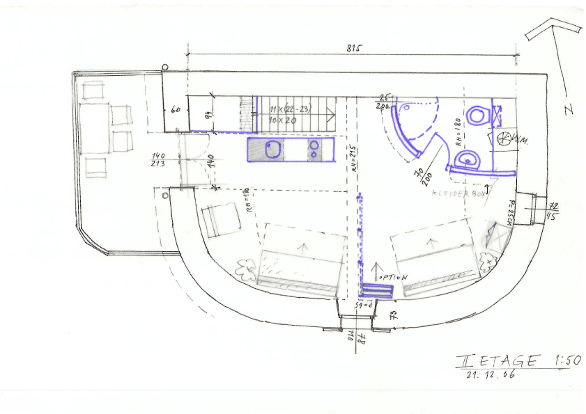
Unser Makler war auch gleichzeitig unser Architekt und spezialisiert auf die Renovierung von alten Steinhäusern. Er hat uns einige Beispiele von alten Gebäuden vor und nach einer Renovierung gezeigt. So konnten wir uns das Ganze überhaupt erst einmal vorstellen. Den Umbauplan für unsere Turmappartements zeichnete unser Architekt ganz nach alter Schule noch von Hand. Eine Baugenehmigung benötigten wir nicht, da es sich um eine Renovierung handelte. Diese braucht man übrigens auch bis heute nicht, wenn man eine Ruine in den alten Dimensionen wieder aufbaut. Als Baufirma hatten wir einen einheimischen "Steinflüsterer", der sich auf die Wiederherstellung von alten Steinmauern spezialisiert hatte.
Als die Handwerker mit den Arbeiten anfangen wollten, gab es nur ein kleines Problem: der Vorbesitzer hatte vergessen auszuziehen! Aber da es in Kroatien eigentlich keine Probleme gibt – nema problema - schafften die Handwerker zusammen mit dem Vorbesitzer schnell die Wohnungseinrichtung in das Erdgeschoss. Nach drei Monaten waren die Bauarbeiten abgeschlossen. Wir wunderten uns, dass in dieser Zeit nur eine kleine Rückfrage von unserem Architekten per SMS kam: "Braucht ihr Leute Klingel?" Nach kurzer Verwirrung wurde uns klar, dass unser Architekt einfach eine Wohnungsklingel meinte (die wir nicht benötigten). Allerdings hieß dies, dass die Renovierungsarbeiten dem Ende zugingen. So fuhren wir im Juli 2007 mit großer Vorfreude auf die "neuen" Appartements in einem mit Möbeln vollbepackten Lederhosen-Sprinter auf Krk. Endlich war der Tag gekommen, an dem wir unsere Wohnungen zum ersten Mal nach dem Umbau anschauen konnten.
Unserem Architekten hatten wir nur eine einzige Vorgabe für die Wandfarben gemacht: "Jede Farbe nur bitte nicht rosa!" (In Kroatien sind komischerweise viele Häuser in rosa gestrichen, was uns gar nicht gefällt). Als wir zum ersten Mal die neue Wohnungstüre öffneten, war die erste Wand, die wir sahen: ROSA! Unser Architekt schaute in unsere verdutzten Gesichter und meinte gelassen: "Die Wand ist lachsfarben, nicht rosa." Zum Glück wurden wir aber schnell abgelenkt durch die wunderschöne, Jahrhunderte alte Steinwand, die nach Abschlagen sämtlicher Putzschichten zum Vorschein gekommen war. Nachdem wir die zwei neuen Wohnungen eingerichtet hatten blieb noch unser Highlight: Die Taufe unserer Appartements auf die Namen "Don Camillo" und "Peppone". Auf die Namen kamen wir, weil der Turm einige Zeit vom Pfarrer des Dorfes Sveti Vid bewohnt wurde. Daher schien es uns ein gutes Omen, wenn man die eine Wohnung nach dem Pfarrer "Don Camillo" und die andere nach dem kommunistische Bürgermeister "Peppone" (in Anlehnung an das kommunistische Jugoslawien) aus der italienischen 60er-Jahre Serie benennt.
Die Einweihung feierten wir mit einem sehr leckeren Mehrgängemenü, dass wir gemeinsam mit unseren Helfern und Freunden bei Sonnenuntergang genießen durften. Unser Architekt und mittlerweile Freund bekam von uns "drei Musketieren" (wie er uns ja getauft hatte) Wein und einen Degen. Es war ein unvergesslicher Abend!



























